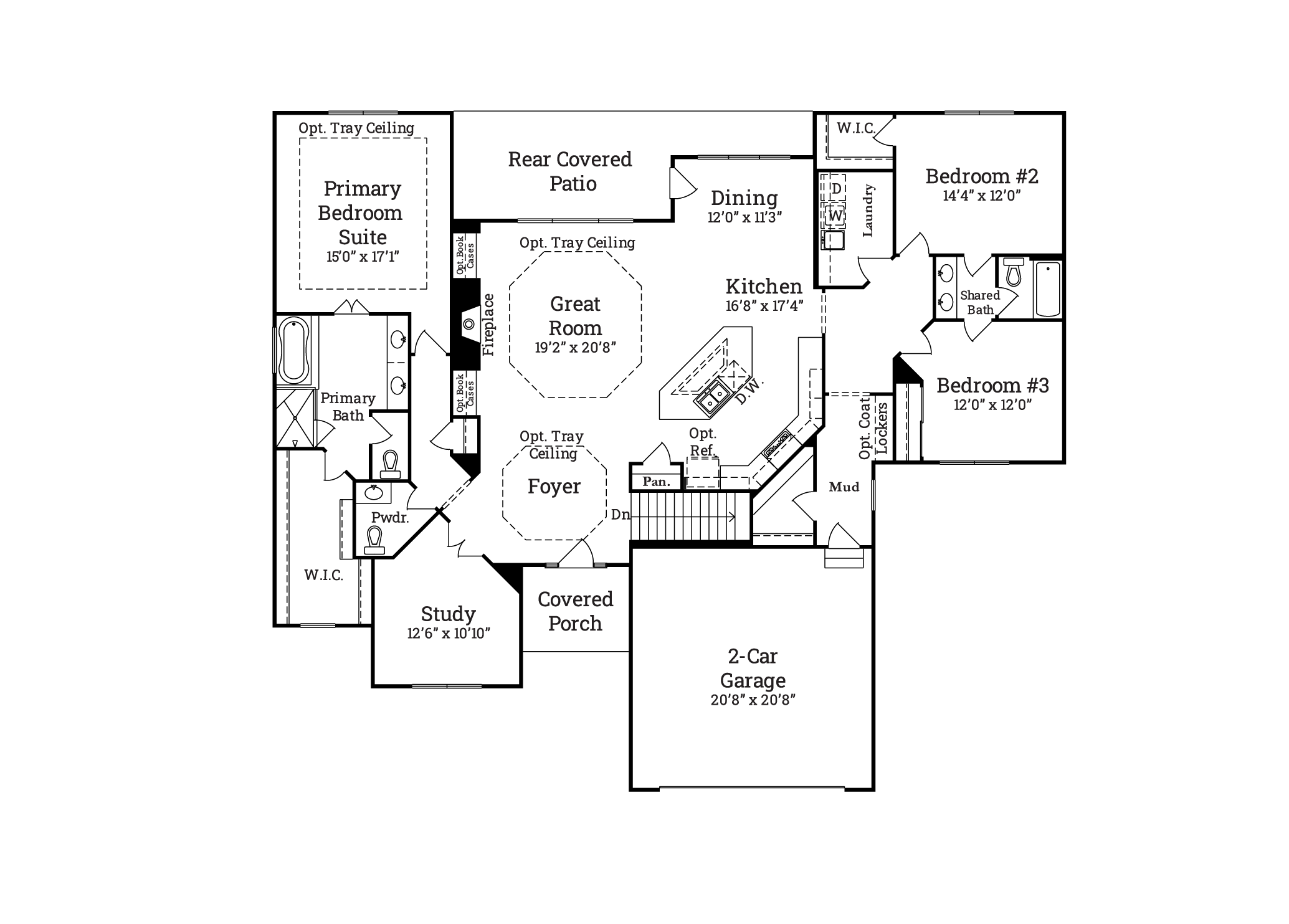
BRIGHTON
Choose Elevation
1
2
3
4
Choose Floor
FIRST FLOOR
BASEMENT FLOOR
Floor Options
Reset
IN- LAW SUITE
KITCHEN W/ PANTRY
HALL BATH ILO SHARED BATH
REAR COVERED PATIO
PRIMARY BATH SHOWER
2 CAR SIDE LOAD GARAGE
3 CAR SIDE LOAD GARAGE
3 CAR GARAGE
LOWER LEVEL #1
LOWER LEVEL #2
LOWER LEVEL WITH ALT. KITCHEN W/ PANTRY STAIR
Clear
Email
Print
Reset
Clear
Email
Print
Save Your Plan
Save your customized plan. We'll send you a link via email, so you can view this plan at anytime.
Save
Plan created successfully. Your customized plan has been sent to your email!